SINNSTIFTER & INSPIRATION

FREI !!

Ort: Bad Essen • Ortsteil

Objekt: Ein/Zweifamilienhaus

Kaufpreis: 510.000 € VHB
zzgl. 2,38% Käufercourtage

  • Was zählt für Sie, wenn Sie an Ihre persönliche Zukunft denken? Gut und zufrieden leben in großzügigen Wohnräumen in einem ursprünglichen Bauernhaus in Bad Essen – Ortsteil.

 

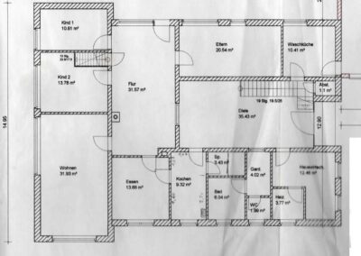
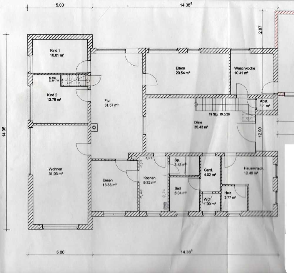
  • Mehr Freiraum gemeinsam mit Ihrer geliebten Familie? Ca. 282 m² Wohnfläche über 2 Etagen (Ausbaureserve vorhanden). Das ehemalige landwirtschaftliche Gebäude aus dem Jahr 1890 wurde 2005 aufwendig saniert und ausgebaut. Das Gebäude wurde davor bereits mehrmals saniert.

 

  • Das Grundstück weist eine Fläche von ca. bis 3.200 m² auf. Der Garten hat einen gewachsenen Baumbestand, ist pflegeleicht, allerdings überaus geschmackvoll angelegt.

 

  • Das ist Ihre Antwort auf einen liebevollen, neuen & konstruktiven Lebensstil.

 

  • Küche mit Einbauküche, Speisekammer und Zugang zur Terrasse mit neuwertiger Markise, Esszimmer, Gäste-WC, Tageslichtbad mit barrierefreier Dusche und Wanne, großer Hauswirtschaftsraum, Heizungsraum (neuwertige Gastherme), große Eingangsdiele, Wohndiele mit wunderschönem Specksteinofen, Wohnzimmer mit Specksteinofen, drei Schlafzimmer im Erdgeschoss, gemütlicher Lesebereich.
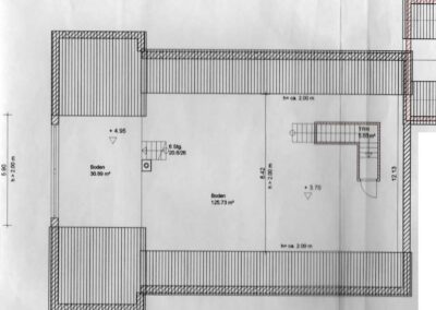
    Im Obergeschoss beeindruckender Hobby/Studioraum. Auf der anderen Seite liegt im Obergeschoss ein mehr als großzügiges Schlafzimmer mit angrenzendem Ankleidezimmer und Räumlichkeit für z.Bsp. Reisekoffer. Auch vom Haus aus zugänglich ist die massive Dreifachgarage mit Rolltoren und Dachboden.
    Alles in Allem ein Haus wie man es sich selbst bauen würde.

 

  • Bezugsfrei: ab sofort – Energieausweis ist in Bearbeitung.

 

  • Frau Nadja Kockläuner freut sich Ihnen die Türen zu Ihrem neuen Zuhause öffnen zu dürfen.
  • Bitte haben Sie Verständnis dafür, dass wir nur Anfragen beantworten können, wenn Sie uns Ihre vollständige postalische Adresse mit gültiger E-Mail-Adresse und Telefonnummer (unter der Sie tagsüber erreichbar sind) mitteilen. Wir danken Ihnen für Ihr Verständnis und freuen uns auf eine angenehme Kontaktaufnahme!
Eine Gewähr für Richtigkeit und Vollständigkeit wird nicht übernommen. Die Objektdaten stammen vom Eigentümer. Objektadressen nennt Ihnen N.R.-Immobilien gerne auf Anfrage, ich bitte Sie jedoch, die Kontaktaufnahme nur durch meine Person einzuleiten, da ich den Eigentümern eine korrekte und meinem Ruf entsprechende, vertrauensvolle Abwicklung zugesichert habe. Bitte vereinbaren Sie einen unverbindlichen Besichtigungstermin, um einen genauen Eindruck von dieser schönen Immobilie zu erhalten. Für etwaige Rückfragen stehe ich Ihnen gerne zur Verfügung. Unser Angebot ist freibleibend und unverbindlich.